0CIO
Osservatorio Civico su casa e residenzialità
Canoni concordati (Patti territoriali)
Contratto di affitto in cui il canone mensile non è libero, ma stabilito in base a specifici “accordi territoriali” che coinvolgono i Comuni, le organizzazioni di inquilini e di proprietari e il Ministero dei Lavori Pubblici. Nel Comune di Venezia tale accordo è stato rinnovato il 28 marzo 2018. In generale, questi contratti sono vantaggiosi sia per l’inquilino poiché il canone è inferiore al prezzo di mercato, sia per il proprietario che gode di alcune agevolazioni fiscali. (link: https://www.comune.venezia.it/content/patti-territoriali text: https://www.comune.venezia.it/content/patti-territoriali )
Città storica
I sestieri veneziani inclusa l'isola della Giudecca.
Città insulare
La città storica + l'estuario e le isole minori.
Terraferma
Il territorio non insulare del Comune di Venezia.
Comuni ad alta tensione abitativa
Sono una serie di comuni, individuati per legge e in base a delibere del CIPE (Comitato Interministeriale per la Programmazione Economica), nei quali è presente un forte disagio abitativo. Tra i Comuni ad alta tensione abitativa vi sono tutte le maggiori città italiane e i capoluoghi di provincia. Proprio in ragione del disagio abitativo, si prevede che ai proprietari che concludono contratti di locazione a canone agevolato o concordato siano concessi significativi benefici fiscali (cedolare secca al 10%).
E.R.P. (Edilizia Residenziale Pubblica)
È costituita da alloggi il cui canone di locazione è commisurato al reddito delle famiglie locatarie. Vi si accede tramite bando comunale che ne identifica i criteri di accesso e relativa graduatoria. La proprietà di tali alloggi è di Enti o Amministrazioni pubbliche mentre la gestione può essere affidata a soggetti terzi.
I.P.A.V. – Istituzioni Pubbliche di Assistenza Veneziane
Tra gli enti socio-assistenziali rivolti alla persona più importanti del Veneto. Gestisce strutture socio-sanitarie, residenziali, centri servizi rivolti ad anziani, di riabilitazione, comunità alloggio per ragazzi e ragazze con difficoltà famigliari e di disagio giovanile, ecc. I.P.A.V. è proprietaria di un ingente patrimonio disponibile, derivante da lasciti e donazioni, costituito da 587 immobili a destinazione abitativa e 211 con destinazione diversa (negozi, alberghi, magazzini, …) localizzati in massima parte nella Città Storica di Venezia. Questi immobili sono locati con contratti del tipo libero o conformi agli accordi territoriali. Le nuove assegnazione di abitazioni sfitte sono decise attraverso gara a base d’asta al massimo rialzo. La redditività lorda degli immobili del patrimonio disponibile di I.P.A.V. è pari complessivamente a circa dieci milioni di euro annui (dato aggiornato al 2021).
ISEE-ERP
Indicatore della Situazione Economica Equivalente per l’Edilizia Residenziale Pubblica (ERP): introdotto da legge regionale determina l’accesso, la permanenza e il calcolo dei canoni di locazione degli alloggi ERP.
Legge speciale per Venezia
Con questo termine si indica, in modo generico, un complesso di interventi legislativi “speciali” che, a seguito dell’alluvione del 1966, sono stati approvati nel tempo con il fine di perseguire la salvaguardia fisica, ambientale e socio-economica della città. Per quanto concerne la casa e la residenzialità, è particolarmente rilevante la legge n. 798/1984 (seconda legge speciale dopo la prima del 1973) che introduce importanti investimenti per l’edilizia residenziale e contributi ai privati per il risanamento di immobili di proprietà, con destinazione abitativa vincolata per alcuni anni.
Locazioni brevi turistiche
Sono una tipologia di contratto di locazione di immobile ad uso abitativo che coniuga lo scopo turistico (l’abitazione cioè non viene affittata per risiederci stabilmente) con la brevità della relativa durata (almeno inferiore a 30 giorni, ma spesso limitata a pochi giorni). Si tratta della tipologia contrattuale più frequente con la quale le case a Venezia sono affittate ai turisti. La sua grande diffusione è legata all’avvento delle piattaforme di home-sharing; la più nota fra queste è Airbnb (nata nel 2008). Non essendo una tipologia ricettiva vera e propria, le locazioni turistiche brevi non ricadono nella competenza legislativa regionale in materia di strutture ricettive (diversamente da B&B, affittacamere, ecc.), ma in quella statale.
Equo canone
Con la legge L.392 del 1978 si introdusse una calmierazione dei canoni di affitto: i contratti stipulati non potevano superare il cosiddetto “equo canone”, un valore stabilito sulla base di alcune caratteristiche dell’alloggio locato, come il tipo di immobile (rurale, ultrapopolare, popolare, economico, civile, signorile), il livello di piano, lo stato di conservazione, la zona della città, l'accesso o meno al trasporto pubblico locale, le dimensioni della città. La legge fu abrogata nel 1998 e da allora i canoni di affitto privati sono completamente sottoposti al mercato.
C.U.R.A. Castello, 19 ottobre 2019
La casa ha bisogno di CURA (Camminata Urbana di Riappropriazione dell'Abitare)
L’Osservatorio CIvicO indipendente sulla casa e la residenzialità - OCIO - è un organismo indipendente che si propone di analizzare la questione abitativa nella Venezia insulare (Città storica + isole e Litorale).
Vi partecipano singoli cittadini e alcuni ricercatori e vuole rappresentare un luogo materiale e virtuale di confronto, analisi e di proposta.
L’Osservatorio si costituisce nel 2018 come esito di un percorso di incontri e confronto in città, realizzati con il metodo dell’autoformazione e della partecipazione e intende, almeno in parte, recuperare l’eredità dell’Osservatorio Casa attivo dalla metà degli anni ‘90 fino al 2012.
TAPPA 1. Patrimonio residenziale nella città storica: quale gestione?
Il patrimonio residenziale a Venezia è gestito principalmente da Comune e Ater:
- alloggi gestiti dal Comune: 1829 nella Città storica + 719 tra Isole e Litorale
- alloggi gestiti dall’Ater: 2040 nella Città storica + 506 tra Isole e Litorale
Fondazioni, Opere pie e altri enti gestiscono un'ulteriore quota di oltre 1.000 alloggi, dei quali più di 800 si trovano nella Venezia insulare. Qui di seguito alcuni dati:
Di questi: 86 (più del 10%) risultano sfitti.
I dati sono aggiornati agli anni 2017-2018 e sono tratti da fonti pubbliche ufficiali, ma non sono esaustivi perché non tutti gli Enti pubblicano in Amministrazione Trasparente - come sarebbero tenuti a fare - le informazioni su gestione del patrimonio e canoni.
Le abitazioni gestite da questi Enti sono generalmente date in locazione con contratti di tipo libero o conformi agli accordi territoriali e spesso attraverso gare informali per l’individuazione dei locatari che si basano esclusivamente sull’offerta al massimo rialzo rispetto al canone di locazione annua. Le offerte pervenute tra gli esiti di alcune di queste gare si avvicinano o superano i 1000 euro mensili per abitazione.
TAPPA 2. Quintavalle: un quartiere in abbandono
Le condizioni abitative dei ceti popolari a Venezia tra la fine dell’800 e il primo decennio del ‘900 erano drammatiche: abitazioni sovraffollate nelle quali viveva un quinto della popolazione e antigieniche, in particolare quelle a piano terra. Quasi la metà delle case era priva di acqua potabile e aveva il gabinetto in cucina che scaricava nei canali, che erano vere e proprie fogne a cielo aperto.
Per migliorare le condizioni igienico-sanitarie, il Comune di Venezia decide di avviare un programma di case igieniche ed economiche nell’ambito del Piano Regolatore e di Risanamento per Venezia approvato definitivamente nel 1891.
Nel 1893 viene fondata la Commissione per le case sane ed economiche, un ente autonomo costituito da Municipio e Cassa di Risparmio che gestiva i fondi della Cassa destinati alla costruzione di case, le quali divenivano proprietà municipale e il cui reddito serviva a finanziare altre costruzioni.
Il quartiere di Quintavalle viene edificato dalla Commissione nel 1909 sopra un’area di circa 5000 metri quadri, coltivata a orti e di un vecchio bagno popolare: era composto da nove fabbricati (ancora oggi esistenti) per un totale di 84 appartamenti e 4 botteghe. Vi era un locale per il lavatoio ed un altro per le docce.
Con la costituzione nel 1914 dell’Istituto Autonomo Case Popolari (IACP) il Comune decide di trasferire al nuovo istituto alcune aree fabbricabili e 686 alloggi costruiti dalla Commissione a Venezia: tra queste, i complessi di Quintavalle, S.Anna, Corte Colonna a Castello, quelli edificati a Cannaregio (San Giobbe, San Leonardo, Gesuiti) e a Dorsoduro (San Rocco, Domus Civica).
Molti di questi alloggi sono sottratti all’assegnazione e risultano quindi chiusi. I lavori di manutenzione di quelli assegnati spesso sono stati effettuati dai locatari. Molti dei quali si sono visti aumentare i canoni di locazione o recapitare dall’Ater la notifica dell’avvio della procedura di decadenza dall’alloggio - vedi approfondimento -.
Scheda di approfondimento. La nuova legge regionale sugli alloggi di Edilizia residenziale pubblica (ERP): cos’è cambiato
La nuova legge regionale veneta sull’Edilizia Residenziale Pubblica (L.R. n. 39/2017) è intervenuta a modificare sia i criteri per l’accesso che quelli per la decadenza dall’alloggio nonché per la determinazione dei canoni di locazione. Le conseguenze sugli inquilini sono state pesanti: l’Ater di Venezia (uno tra i gestori di alloggi ERP) ha inviato 6.170 lettere di preavviso di decadenza e aumento del canone (L’81,6% delle famiglie in alloggio ERP dell’Ater nella provincia ha ricevuto questa comunicazione. Fonte: La Nuova Venezia, 7 agosto 2019) che hanno provocato angoscia e proteste degli inquilini.
In generale, il canone d’affitto di un alloggio ERP è una somma commisurata alla condizione socioeconomica dell’inquilino ma la nuova legge introduce modifiche importanti sia nella valutazione di tale condizione che nel calcolo degli stessi canoni. In sintesi:
- viene abbassata la soglia reddituale per l’accesso agli alloggi: da 26.833 di reddito a 20.000 di Isee-ERP (che contiene una parte dei risparmi e del patrimonio);
- viene parificata la soglia di decadenza a quella per l’accesso (20.000 di Isee-ERP);
- nella determinazione del canone entra il valore di mercato dell’alloggio;
- i contratti di locazione diventano a tempo determinato.
Nella Città storica le conseguenze saranno particolarmente gravi
poiché la perdita dell’abitazione determina spesso un esodo fuori città, per l’impossibilità economica delle famiglie ad accedere a un mercato immobiliare drogato dal turismo. Tra le riflessioni che proponiamo:
- i canoni d’affitto non dovrebbero essere legati ai valori di mercato ma rappresentare un’alternativa al mercato con scopi di calmierazione.
- a determinare la fuoriuscita dei nuclei non dovrebbe essere un generico superamento di soglia regionale ma la disponibilità separatamente di un reddito capace di sostenere un affitto di mercato o di un patrimonio mobiliare in grado di sostenere un acquisto nella zona di residenza, al netto dei bisogni familiari.
- è essenziale portare gli investimenti pubblici per la casa almeno a livello europeo e adottare misure urgenti per la calmierazione generale dei costi dell’abitare.
A questo link trovi l’analisi completa a cura dell’Osservatorio Ocio: https://ocio-venezia.it/articoli/2019/08/27/legge-regionale-erp/
TAPPA 3. Area Ex-ACTV: l’housing sociale questo grande sconosciuto
In piena continuità con la progettualità evanescente sull’edilizia convenzionata - vedi approfondimento - anche l’area dell’ex cantiere ACTV è stata fatta oggetto di proclami amministrativi mai concretizzati. Vediamone alcuni:
- 21 Novembre 2003 - L’assessore Roberto D’Agostino annuncia 110 alloggi in social housing a S.Elena, parte di un più ampio piano per 1400 alloggi in edilizia convenzionata nell’intero comune, alloggi che verrebbero finanziati tramite l’emissione di “obbligazioni” comunali. Dell’intero pacchetto D’Agostino verranno realizzati solo i 38 alloggi Piruea del Lido e con fondi derivanti dalla vendita dei diritti di edificazione (annuncio del Gazzettino - 21 novembre 2003)
- 13 Novembre 2008 – Nuovo progetto per la realizzazione di 350 case a S.Elena: l’assessorato dirama una nota in cui afferma “è pronto il progetto definitivo” (Nuova Venezia - 13 Novembre 2008)
- 22 Settembre 2012 – Nuovo annuncio dell’amministrazione Orsoni alla stampa: il progetto per il social housing nell’area Actv costerà 70 milioni, il 10% del patrimonio edificato sarà ceduto alle imprese costruttrici per finanziare l’operazione. Sorgeranno negozi, uffici, un supermercato ed un albergo. Il social housing obbligherà i proprietari ad applicare un affitto calmierato ai residenti. L’assessorato dichiara il progetto “ultimato”. (Nuova Venezia - 22 settembre 2012)
- 5 Novembre 2012 – L’assessore Bruno Filippini, nell’ambito del piano comunale per la residenza (che prevede complessivamente 5000 alloggi in social housing) risponde in Consiglio all’interpellanza n.1286 affermando che a S.Elena nell’area Actv sorgeranno 250 alloggi in edilizia convenzionata.
Scheda di approfondimento. Edilizia convenzionata, un progetto mancato
L’edilizia convenzionata ha visto nel Comune di Venezia un laboratorio di sperimentazione che precede il social housing regolamentato in Italia dal DL 25 giugno 2008, n. 112 e più noto come “Piano Casa”, un piano nazionale che voleva rispondere all’emergenza abitativa accentuata dalla crisi economica del 2008. Questi esperimenti locali di finanza creativa, conseguenza diretta dei tagli al finanziamento del comparto dell’edilizia residenziale pubblica (ERP), non sono purtroppo quasi mai andati a buon fine. Va ricordato che l’Italia investe sull’edilizia residenziale pubblica 42 volte meno della Francia e 72 volte meno dell’Inghilterra (Dato tratto da “Italia senza casa” L.Fregolent, CRESME 2008).
L’edilizia convenzionata consiste nell’edificazione o restauro di patrimonio edilizio mediante partenariato pubblico/privato e nella vendita di alloggi a residenti ad un prezzo calmierato (un esempio nella Città storica: le alienazioni Junghans, isola della Giudecca) o nella locazione a canone controllato (un esempio nella Città storica: il complesso dell’Opera Pia Coletti, sestiere di Cannaregio). L’operazione viene solitamente finanziata con la cessione di diritti di edificazione o lotti alle ditte esecutrici.
A Venezia questi programmi iniziano con le giunte Cacciari negli anni ‘90. Da allora si sono susseguiti moltissimi annunci su queste “convenzioni” miracolose:
- 2000-2005 - la giunta Costa annuncia 1400 nuovi alloggi
- 2010-2014 - la giunta Orsoni annuncia 5000 nuovi alloggi
- 2013 - l’Ater annuncia 7500 nuovi alloggi in housing sociale
- 2015 - l’attuale sindaco Brugnaro parla di 30.000 nuovi residenti grazie alle nuovepolitiche sulla casa
Quasi tutti questi progetti sono purtroppo naufragati. Elenchiamo i più noti: area Scalera e alloggi Stucky (Giudecca), area Ospedaletto e ex cantieri Actv (Castello) Caserma Manin, e Area Umberto I (Cannaregio) , Area Italgas (Dorsoduro).
Solo pochissimi progetti sono stati realizzati: Complesso Opera pia Coletti con 71 alloggi; “bando social housing 2019” con 57 alloggi (di cui 17 nel sestiere di Castello), parte del progetto Junghans alla Giudecca e parte del progetto Piruea del Lido. In fase di assegnazione anche gli alloggi delle Conterie di Murano (dopo 12 anni!) - per un totale di poco più di 200 alloggi.
Mappa dei progetti di housing sociale per la Città storica: https://ocio-venezia.it/pagine/monitoraggio/
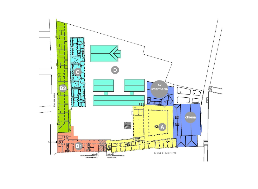
TAPPA 4. Sant’Anna: l’ultimo intervento pubblico nella Città storica
I lavori di recupero dell’ex convento ed ex ospedale militare di Sant’Anna hanno portato alla realizzazione di 103 alloggi, con una sala di quartiere, la viabilità e un giardino. Si tratta dell’ultimo intervento pubblico di realizzazione di alloggi di edilizia residenziale pubblica effettuato dal Comune di Venezia. Qui di seguito alcuni dati:
- Committente: Comune di Venezia
- Appaltante: Edilvenezia spa
- Importo: 10 milioni euro
- Periodo: ottobre 2001 (71.1.2 - primo lotto gestito da Edilvenezia) - marzo 2007(71.1.5 - ultimo lotto realizzato)
Il complesso di Sant’Anna (ex chiesa e adiacente convento) si trova nel sestiere di Castello, tra il rio di Sant'Anna e il canale di San Pietro. Fondato nel 1242, è stato oggetto di diversi interventi e ampliamenti: rifacimento della chiesa (metà del XVII secolo), conversione in collegio per i cadetti della Marina e in ospedale principale di Marina (rimasto attivo fino al 1986).
In accordo con il Demanio, nel 1989 il Comune di Venezia dà inizio ad un progetto generale di recupero: gli interventi si sono sviluppati tra il 2001 ed il 2007 in più riprese e hanno portato alla realizzazione di 103 alloggi e alcuni servizi per il quartiere.
La Chiesa, la cappella e l’ex infermeria sono invece vuoti e inutilizzati. Tra il 2009 e il 2010 sono stati interessati da un intervento di messa in sicurezza promosso da Insula per un importo di 203.793 euro.
Tappa 5. Il peso delle affittanze turistiche
Tra il 2016 e il 2018 nella Venezia insulare sono comparsi 18.614 nuovi posti letto ad uso turistico. Per vedere aumentare l’offerta ricettiva di una cifra simile c’erano prima voluti 15 anni (18.830 posti letto tra il 2001 e il 2016 - Elaborazione di OCIO su dati dell’Ufficio di Statistica della Regione Veneto).
Conversione di nuovi alloggi in strutture ricettive
La Legge Regionale n. 11/2013, insieme alle possibilità offerte dalle piattaforme online, ha favorito in maniera massiccia la conversione di unità abitative ad uso residenziale in alloggi per turisti. I nuovi posti letto del per gli anni 2016-2018 sono dovuti quasi esclusivamente alla locazione turistica (Le locazioni turistiche sono affittanze con finalità turistiche senza prestazione di servizi, relative ad immobili non classificabili come strutture ricettive. La locazione turistica in Veneto è regolamentata dalla Legge Regionale del 14 giugno 2013) di alloggi privati. Quanti degli alloggi convertiti fossero case vuote e quanti invece case prima abitate da residenti, non è dato saperlo. Quello che i dati ci dicono è che le locazioni turistiche si sono infiltrate in ogni angolo, e in molte zone della città ci sono ormai più posti letto in locazione turistica che residenti.
Dati per il sestiere di Castello - aggiornati al 7 ottobre 2019
Nel sestiere ci sono 12.729 residenti e 9.529 posti letto, di cui 5.023 in locazione turistica (Elaborazione OCIO su Stime giornaliere Anagrafe Comune di Venezia e sui dati aggiornati quotidianamente nel Portale GeoIDS. Il sestiere di Castello qui considerato comprende le località di Castello e Sant’Elena).
Che significa: un posto letto ogni 2.5 residenti nel sestiere.
Il sestiere territorio è suddiviso in 269 isolati: 46 isolati sono del tutto residenziali (cioè con almeno un residente e con 0 posti letto ad uso turistico). In oltre 1 isolato su 5 ci sono più posti letto ad uso turistico che residenti. Anche solo considerando esclusivamente i posti letto in locazioni turistiche dichiarate al Comune, ci sono ben 25 isolati con più posti letto che residenti. Un esempio su tutti. Corte delle Colonne: dove ci sono 18 residenti e 50 posti letto in locazione turistica
Sul sito di trovi una serie di strumenti interattivi per esplorare i dati sulle affittanze turistiche. Trovi anche la versione interattiva della mappa di questa pagina: https://ocio-venezia.it/pagine/affittanze-dati/
-
29 May 2026
Dati, osservatori e politiche per l'abitare in città e territori (altrimenti) a breve termine
Report della tappa veneziana verso l'assemblea nazionale del Social Forum dell'Abitare

-
10 May 2026
ISTAT - Censimento della popolazione e delle abitazioni 2023

-
17 April 2026
Tre anni di ottimi risultati di Insula (secondo il suo presidente)

Social Housing/Edilizia convenzionata o Edilizia Residenziale Sociale
Si tratta di progetti che si collocano tra l’edilizia popolare e il mercato immobiliare libero destinati alla fascia di popolazione che non può accedere ai bandi ERP ma che non riesce ad acquistare o sostenere un canone d’affitto di un appartamento a prezzi di mercato. Il social housing è definito dal D.M. 22 aprile 2008.